tools tools

Taman LambirJaya - Commercial
register

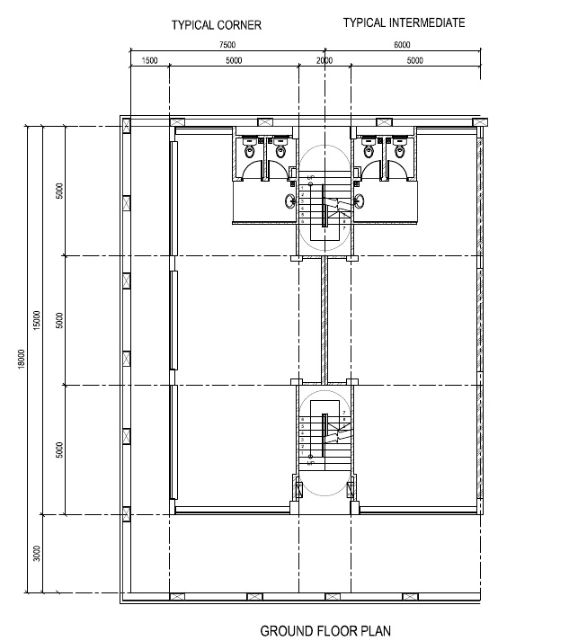
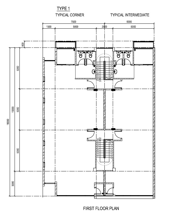
SHOPHOUSES (2 Storeys Commercial Shop Lots)



Type Length x Width (M)
Type 1 (Intermediate) 18 x 6
Type 1 (Corner) 18 x 7.5
Type 2 (Intermediate) 23 x 6
Type 2 (Corner) 23 x 7.5
Specifications
Structure Reinforced concrete framework
Walls Red clay brick
Roofing Metal roofing sheet c/w steel truss and RC slab
Ceiling Finishes UAC Superflex asbestos free ceiling board to toilet.
Floor Finishes Cement screed.
Ceramic floor tiles for toilet.
Wall Finishes Ceramic tile up to 1.50m height for toilet.
Paint Weathershield paint to external wall.
Emulsion paint to internal wall and ceiling.
Doors Natural anodised aluminium roller shutter
First Floor Entrance door – 1 hour fire rated door
Toilet door - PVC door
Windows White powder coated aluminium frame with green tinted glass panel.
Sanitary Fittings Water closet and hand wash basin with tap.
Plumbing Services Cold water plumbing system.

Site Plan

site plan

Progress

Enquiry

Fields indicated with (dot) is required.

Office Tel
 

 
(Note: This form required Javascript to be enabled in order to make successful sending.)

Share With Friend

Fields indicated with (dot) is required.

SENDER INFORMATION


RECIPIENT INFORMATION

I would like to share this project with the following friend(s)/family member(s):

No. Recipient's Name : Recipient's Email Address :
#1
#2
#3
#4
#5

(Note: This form required Javascript to be enabled in order to make successful sending.)